PROJECT
INTERIOR
PRODUCT
COLLECTION
ABOUT
NEWS
SOF STORE
CONTACT
INSTAGRAM
FACEBOOK
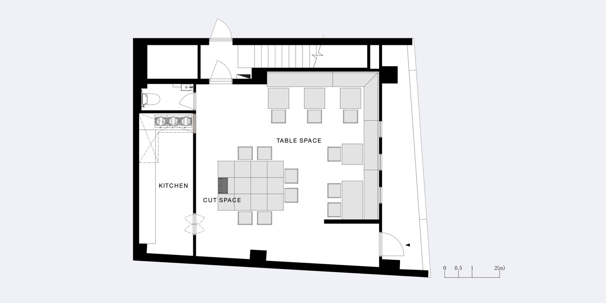
PROJECT
:
牛カツ世桜
CLIENT
:
株式会社世桜
LOCATION
:
FUJIYOSHIDA / YAMANASHI
CATEGORY
:
RESTAURANT
RELEASE
:
October 2025
AREA
:
57.65㎡
CONTRACTOR
:
長田設備工事
PHOTO
:
M.F.T