PROJECT
INTERIOR
PRODUCT
COLLECTION
ABOUT
NEWS
SOF STORE
CONTACT
INSTAGRAM
FACEBOOK
PROJECT
:
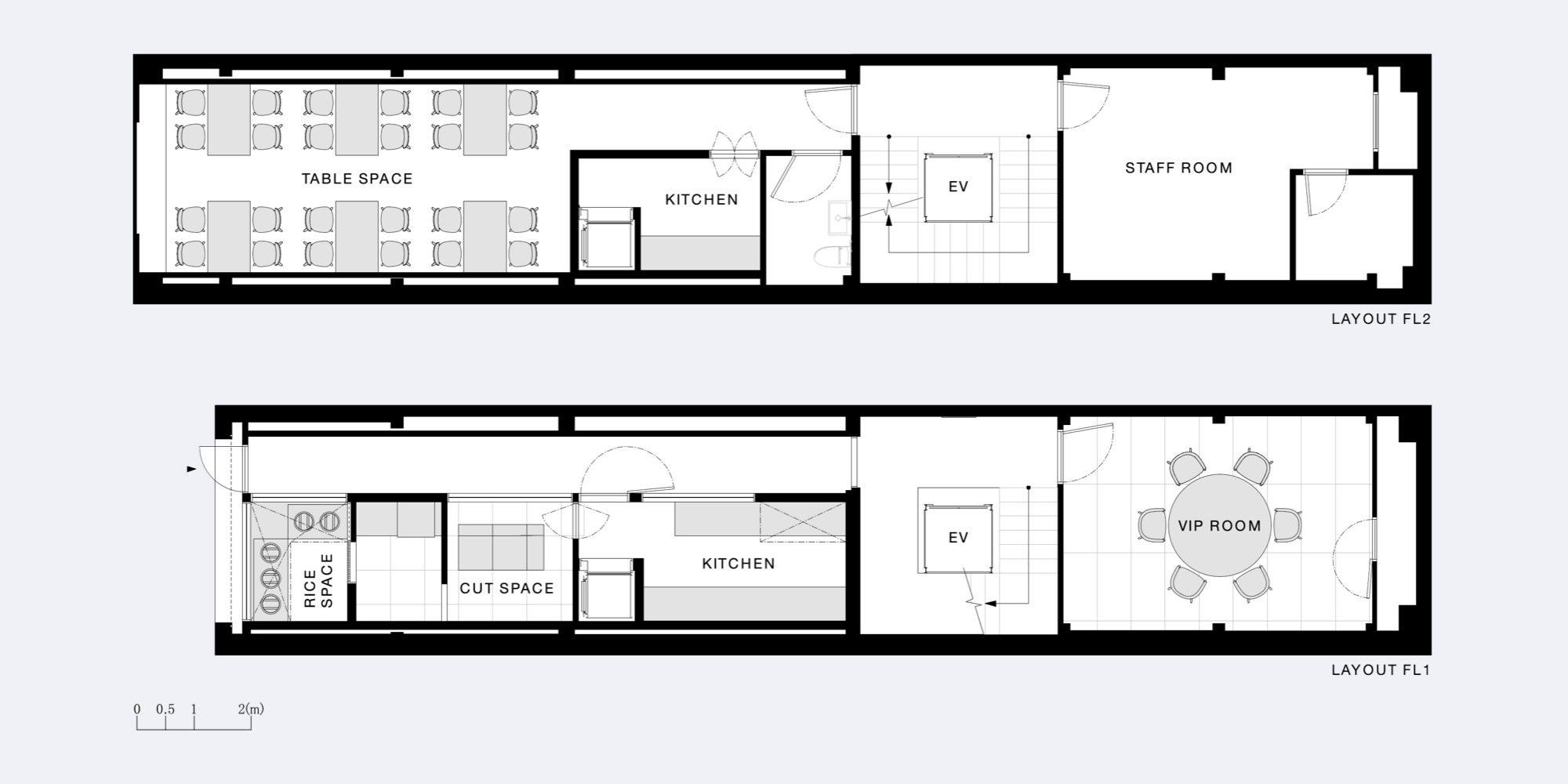
鰻世桜 ベトナム
CLIENT
:
株式会社世桜
LOCATION
:
HOCHIMINH / VIETNAM
CATEGORY
:
RESTAURANT
RELEASE
:
August 2025
AREA
:
131.6㎡
CONTRACTOR
:
TODA VIETNAM Co.,Ltd.
PHOTO
:
M.F.T